Der Burj Azizi – eine neue Superlative für Dubai. Mit einer spektakulären Höhe von über 725 Metern wird dieses architektonische Meisterwerk das zweithöchste Gebäude der Welt und ein Symbol für Luxus, Innovation und Vision. Gelegen an der legendären Sheikh Zayed Road, thront der Burj Azizi über der Stadt als vertikales Wahrzeichen der Extraklasse.
Das ikonische Hochhaus vereint über 130 Etagen mit exklusiven Apartments, luxuriösen Penthäusern, einem sieben Sterne Hotel, einem mehrstöckigen Einkaufszentrum sowie atemberaubenden Lifestyle-Attraktionen wie einem Sky-Club, einer LED-Fassaden-Show und einem Adrenaline-Zone-Erlebnis der Extraklasse. Die Aussichtsplattform in der 127. Etage garantiert unvergessliche Panoramablicke über Dubai und den Persischen Golf.
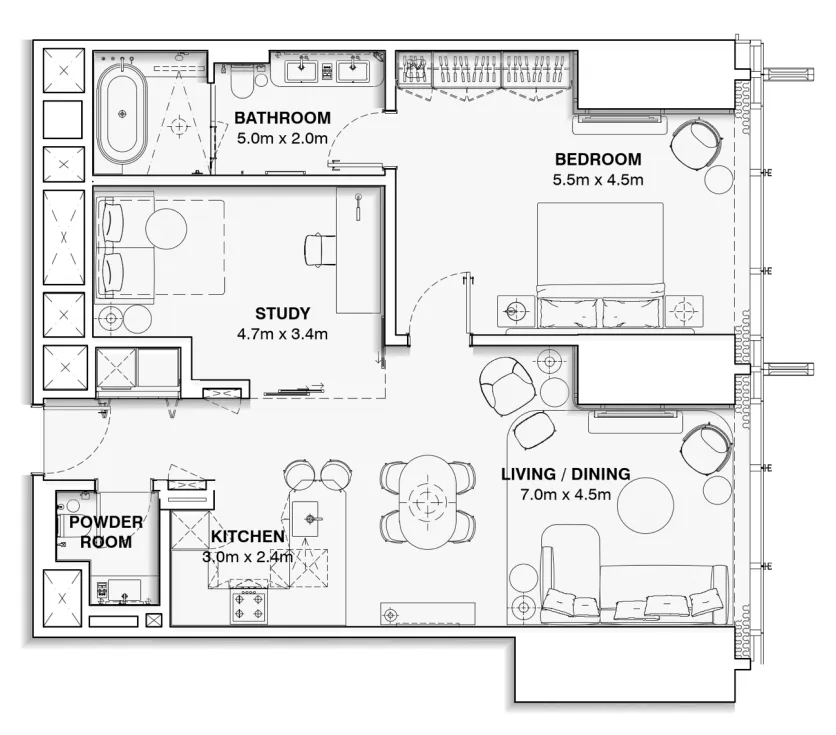
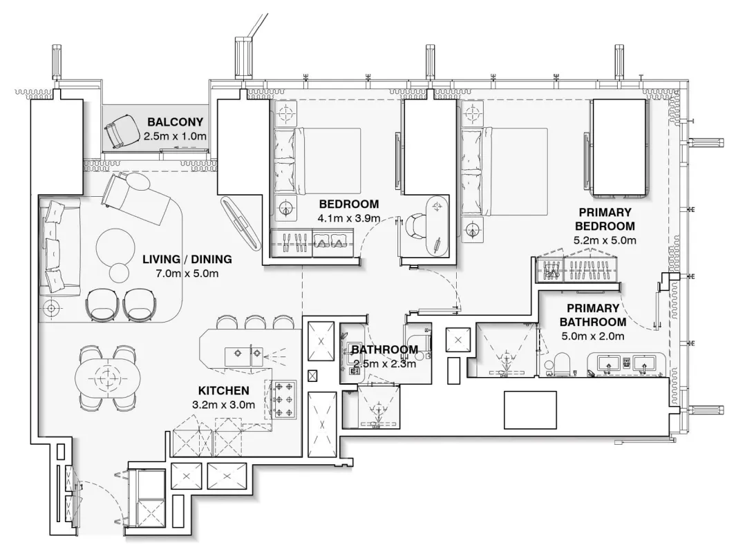
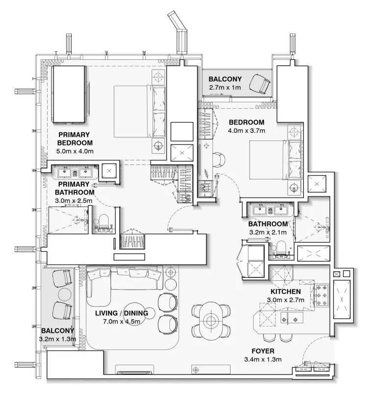
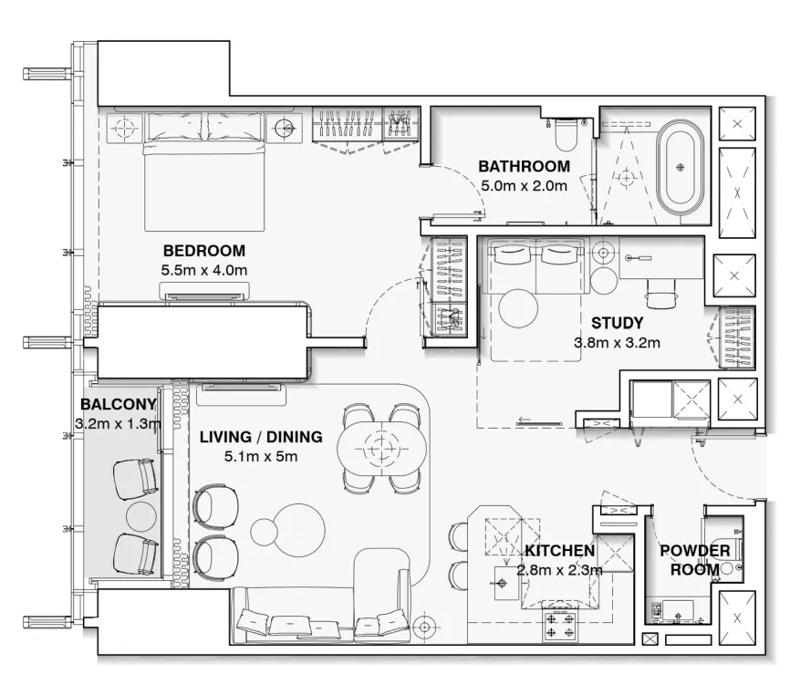
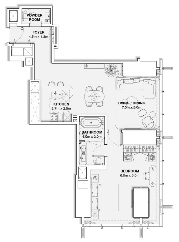
Die Residenzen reichen von eleganten 1‑Schlafzimmer-Wohnungen bis hin zu einzigartigen 5‑Schlafzimmer-Penthäusern mit großzügigen Wohnflächen von bis zu 386 m². Alle Einheiten bieten moderne Grundrisse, hochwertige Ausstattung, Wellness- und Freizeitbereiche auf den Etagen 13 und 54 sowie Zugang zu Spa, Pools, Fitness, Kinos und Lounges.
Ein besonderes Highlight ist das vertikale Shopping-Erlebnis auf sieben Etagen mit internationalen Luxusmarken, Fine Dining zwischen Etage 119 und 122, einem exklusiven Nightlife-Bereich sowie einem privaten Beach Club auf Etage 16. Separate Eingänge für Hotel, Wohnen und Retail sorgen für höchsten Komfort und Privatsphäre.
Der Burj Azizi ist nicht nur ein Gebäude – er ist ein neues Kapitel in der Geschichte der Skyline Dubais. Wer hier investiert, wird Teil eines unvergleichlichen Wahrzeichens und sichert sich eine der prestigeträchtigsten Adressen der Welt.
Die nähere Umgebung der Immobilie bietet zahlreiche Annehmlichkeiten.
Sheikh Zayed Road, eine der berühmtesten Verkehrsstraßen Dubais, dient als geschäftige und dynamische Arterie, die sich durch die pulsierende Landschaft der Stadt zieht. Diese etwa 55 Kilometer lange Autobahn ist ein Symbol für Dubais Modernität und wirtschaftliche Stärke. Die Straße, die nach Scheich Zayed bin Sultan Al Nahyan, dem Gründervater der Vereinigten Arabischen Emirate, benannt ist, ist ein Beweis für die visionäre Führung, die Dubai in eine globale Metropole verwandelt hat. Gesäumt von hoch aufragenden Wolkenkratzern ist Sheikh Zayed Road ein Synonym für die beeindruckende Skyline der Stadt. Die Route wird von einer atemberaubenden Reihe architektonischer Wunderwerke gesäumt, darunter elegante Bürotürme, Luxushotels und Wohnkomplexe, die zum futuristischen und kosmopolitischen Ambiente der Gegend beitragen. Auf den zweispurigen Straßen der Straße herrscht oft reger Verkehr aus lokaler und internationaler Sicht, was Dubais vielfältige und multikulturelle Bevölkerung widerspiegelt. Sheikh Zayed Road ist nicht nur ein Verkehrskorridor; Es ist auch ein Symbol für Dubais wirtschaftlichen Wohlstand und Geschäftszentrum. Die Hauptverkehrsstraße beherbergt die Hauptsitze zahlreicher multinationaler Konzerne, Finanzinstitute und bedeutender Geschäftsniederlassungen. Seine strategische Lage hat es zu einer wichtigen wirtschaftlichen Lebensader gemacht und erleichtert den Verkehr von Waren, Dienstleistungen und Personen in der ganzen Stadt.